12 ДД

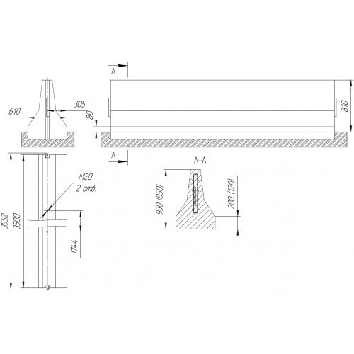
Чертеж изделия:
Характеристики изделия:
ПараметрЗначение
длина3552 мм
ширина610 мм
высота930 мм
масса2940 кг
нормативный документТУ 5899-002-61548960-2010

12 ДД  Блоки парапетного двухстороннего стационарного ограждения по ТУ 5899-002-61548960-2010.