Б 1
Характеристики изделия:
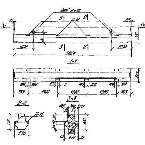
| Параметр | Значение |
|---|---|
| длина | 5950 мм |
| ширина | 650 мм |
| высота | 800 мм |
| масса | 4750 кг |
| нормативный документ | ТП 901-4-63.83 |
Цена:
Рассчитать стоимостьБ 1 Ригели по Типовому проекту ТП 901-4-63.83.
| Параметр | Значение |
|---|---|
| длина | 5950 мм |
| ширина | 650 мм |
| высота | 800 мм |
| масса | 4750 кг |
| нормативный документ | ТП 901-4-63.83 |
Б 1 Ригели по Типовому проекту ТП 901-4-63.83.
