Ф 4

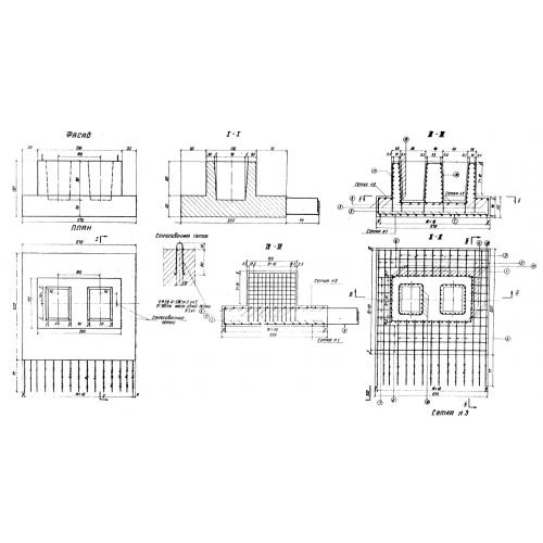
Чертеж изделия:
Характеристики изделия:
ПараметрЗначение
длина2700 мм
ширина2550 мм
высота1300 мм
масса11500 кг
нормативный документТП 501-166

Ф 4  Фундаменты по Типовому проекту ТП 501-166.