Б 24-20-7.5

Чертеж изделия:
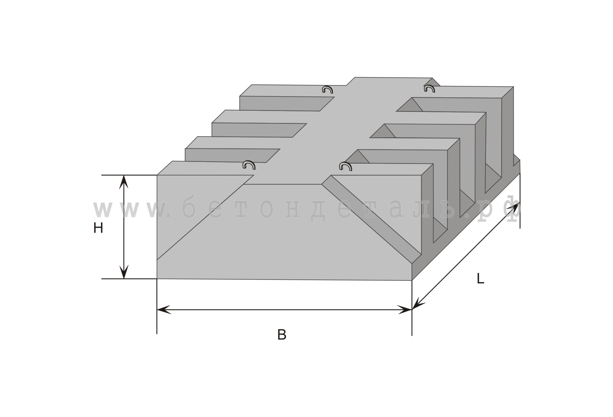
Характеристики изделия:
ПараметрЗначение
длина2400 мм
ширина2000 мм
высота800 мм
вес4100 кг
серия709-9-126.93
Норма погрузки на машину (20тн)5

Краткая информация

Шпальные блоки для повышенных путей Б 24-20-7.5 - это железобетонные изделия, которые применяются при сборке железнодорожного полотна, а также для перемещения и выгрузки вагонов с сыпучими грузами. Преимущество использования данного изделия заключается  в его способности к самоочистке и возможности выдерживать интенсивные нагрузки. Шпальные блоки долговечны, срок их эксплуатации -  более 50 лет.

Производство

Производство шпальных блоков проходит жесткий контроль качества. Изделия должны отвечать высоким показателям по морозостойкости и водонепроницаемости, устойчивости к высоким нагрузкам. Для этого при изготовлении используется бетон повышенной прочности со специальными добавками для повышения технических свойств массы, а так же выполняется армирование сталями класса A III.

Маркировка

Марка шпалы состоит из двух буквенно-цифровых групп, разделенных дефисом. Первая группа содержит обозначение типа блок шпальный. Во второй группе указывают через дефис размеры изделия в дм.

Транспортировка и хранение

Изделия укладываются штабелями с использование деревянных подкладок толщиной 30 см.