ПСТ 30.15.3.5

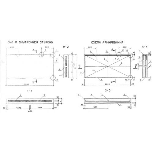
Чертеж изделия:
Характеристики изделия:
ПараметрЗначение
длина2980 мм
ширина350 мм
высота1485 мм
масса1830 кг
нормативный документШифр  М25.13/98

ПСТ 30.15.3.5 Панели стеновые трёхслойные по Шифру М25.13/98.