П 72.15

Чертеж изделия:
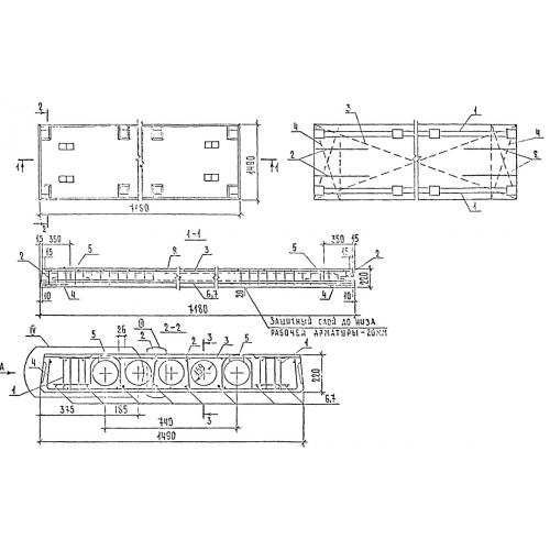
Характеристики изделия:
ПараметрЗначение
длина7180 мм
ширина1490 мм
высота220 мм
вес4100 кг
Шифр89-1227

П 72.15 Плиты перекрытий многопустотные по Шифру 89-1227.