ПН-600

Чертеж изделия:
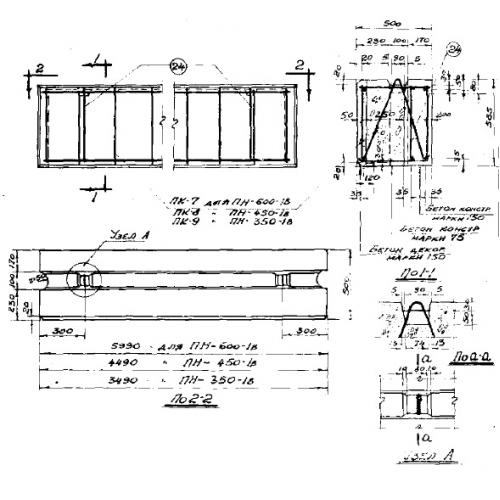
Характеристики изделия:
ПараметрЗначение
длина5990 мм
ширина500 мм
высота585 мм
вес3483 кг
серияСТ 02-01

ПН 600 Перемычки наружных стен по серии СТ 02-01.