ПСТ 2
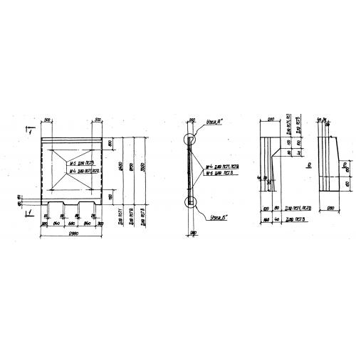
Характеристики изделия:
| Параметр | Значение |
|---|---|
| длина | 2980 мм |
| ширина | 2750 мм |
| высота | 200 мм |
| вес | 3200 |
| серия | ИС-01-05 |
Цена:
Рассчитать стоимостьПСТ 2 Плиты стеновые по серии ИС-01-05.
| Параметр | Значение |
|---|---|
| длина | 2980 мм |
| ширина | 2750 мм |
| высота | 200 мм |
| вес | 3200 |
| серия | ИС-01-05 |
ПСТ 2 Плиты стеновые по серии ИС-01-05.
