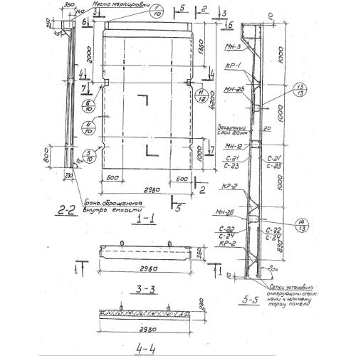
ПС 300-420-35 Панель стеновая балочная

Чертеж изделия:
Характеристики изделия:
ПараметрЗначение
длина2980 мм
ширина4200 мм
высота350 мм
масса6330 кг
нормативный документСерия 3.900.-3

ПС 300-420-35 Панели стеновые балочные для прямоугольных сооружений по Серии 3.900.-3.