РПу 10-15

Чертеж изделия:
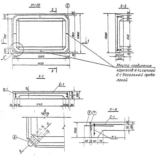
Характеристики изделия:
ПараметрЗначение
длина1500 мм
ширина1000 мм
высота200 мм
масса490 кг
нормативный документСерия 3.820-6

РПу 10-15  Ребристые плиты усиленные по Серии 3.820-6.