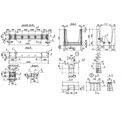
ЛК 73.55.50

Чертеж изделия:
Характеристики изделия:
ПараметрЗначение
длина730 мм
ширина550 мм
высота500 мм
вес225 кг
серия3.818.9-2

ЛК 73.55.50 Лотки для каналов навозоудаления по серии 3.818.9-2.