К 3.4-3-1

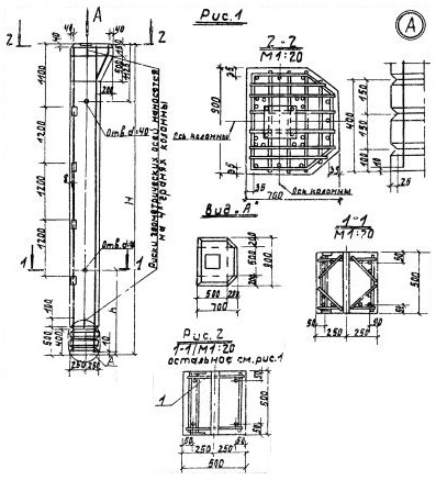
Чертеж изделия:
Характеристики изделия:
ПараметрЗначение
Длина6550 мм
Ширина500 мм
Высота500 мм
Масса4500 кг
Нормативный документСерия 3.702.1-4

К 3.4-3-1   Колонна по Серии 3.702.1-4.