БШ 32-4

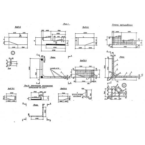
Чертеж изделия:
Характеристики изделия:
ПараметрЗначение
длина3190 мм
ширина2500 мм
высота770 мм
вес1680 кг
серия3.503.1-79

БШ 32-4 Блоки шкафных стенок по серии 3.503.1-79.