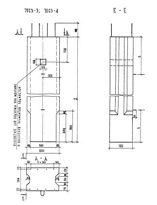
70С3-4
Характеристики изделия:
| Параметр | Значение |
|---|---|
| длина | 4280 мм |
| ширина | 1000 мм |
| высота | 820 мм |
| масса | 6100 кг |
| нормативный документ | Серия 3.503-23 |
Цена:
Рассчитать стоимость70С3-4 Блоки стенок Серия 3.503-23.
| Параметр | Значение |
|---|---|
| длина | 4280 мм |
| ширина | 1000 мм |
| высота | 820 мм |
| масса | 6100 кг |
| нормативный документ | Серия 3.503-23 |
70С3-4 Блоки стенок Серия 3.503-23.