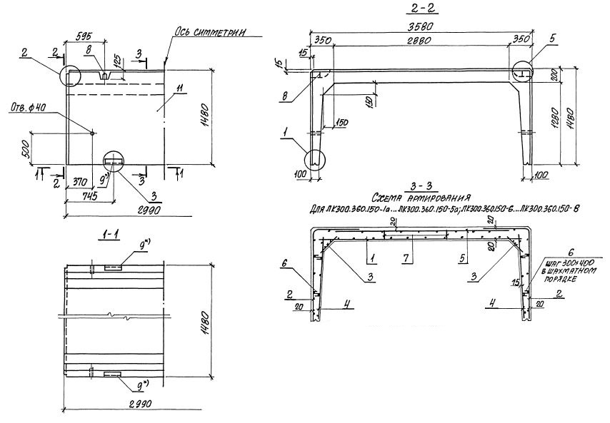
ЛК 300.360.150 лотки

Чертеж изделия:
Характеристики изделия:
ПараметрЗначение
длина2990 мм
ширина3580 мм
высота1480 мм
масса8500 кг
нормативный документСерия 3.006.1-8

ЛК 300.360.150  Лотки каналов Серия 3.006.1-8.