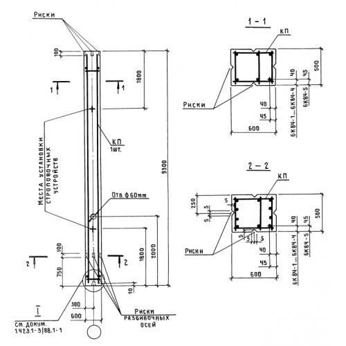
6К 84 колонны

Чертеж изделия:
Характеристики изделия:
ПараметрЗначение
длина9300 мм
ширина500 мм
высота600 мм
масса7000 кг
нормативный докуентСерия 1.423.1-3/88

6К 84 Колонны Серия 1.423.1-3/88.