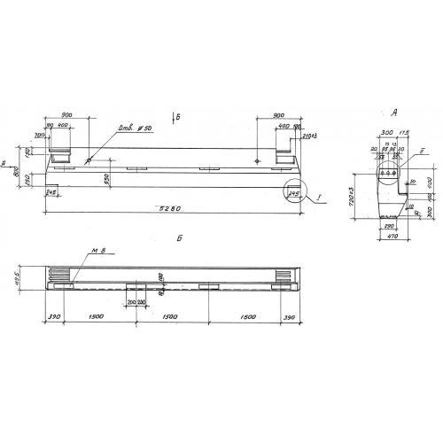
Б 40 ригели
Характеристики изделия:
| Параметр | Значение |
|---|---|
| длина | 5280 мм |
| ширина | 495 мм |
| высота | 800 мм |
| масса | 3700 кг |
| нормативный документ | Серия 1.420-35.95 |
Цена:
Рассчитать стоимостьБ 40 Ригели с полками для опирания плит (однополочные ригели) Серия 1.420-35.95.
