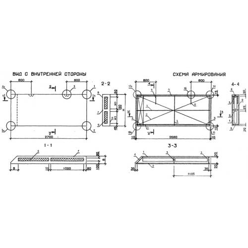
ПСТ 27.21.3.0 панели стеновые

Чертеж изделия:
Характеристики изделия:
ПараметрЗначение
длина2700 мм
ширина250 мм
высота2085 мм
масса2020 кг
нормативный документСерия 1.232.1-7

ПСТ 27.21.3.0  Панели стеновые трехслойные (панель рядовая для внутренних углов зданий) Серия 1.232.1-7.