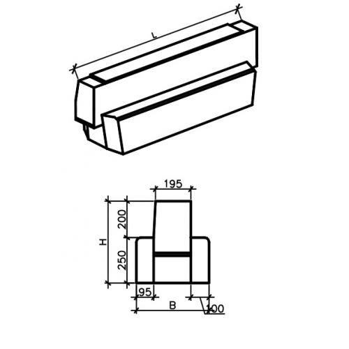
2Р 56.4.5

Чертеж изделия:
Характеристики изделия:
ПараметрЗначение
длина5560 мм
ширина400 мм
высота450 мм
масса1875 кг
нормативный документСерия 1.225.1 КЛ-3

2Р 56.4.5  Ригели Серия 1.225.1 КЛ-3.