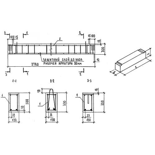
ПРГ 28.1.3 прогоны прямоугольного сечения

Чертеж изделия:
Характеристики изделия:
ПараметрЗначение
длина2780 мм
ширина120 мм
высота300 мм
масса250 кг
нормативный документСерия 1.225-2

ПРГ 28.1.3  Прогоны прямоугольного  сечения Серия 1.225-2.