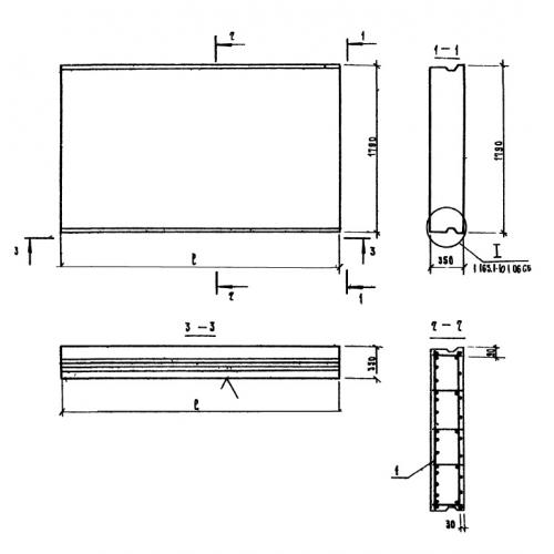
П 63.18.35

Чертеж изделия:
Характеристики изделия:
ПараметрЗначение
длина6270 мм
ширина1790 мм
высота350 мм
вес2900 кг
серия1.165.1-10

П 63.18.35 Панели покрытия по серии 1.165.1-10.