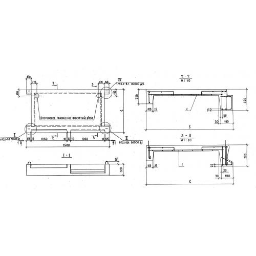
2ЛП 22.18

Чертеж изделия:
Характеристики изделия:
ПараметрЗначение
длина2200 мм
ширина1900 мм
высота370 мм
масса1500 кг
нормативный документСерия 1.152.1-8

2ЛП 22.18  Лестничные площадки ребристые  Серия 1.152.1-8.