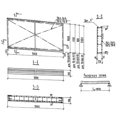
П 60.15.22

Чертеж изделия:
Характеристики изделия:
ПараметрЗначение
длина5980 мм
ширина1490 мм
высота220 мм
вес2450 кг
серия1.143-4

П 60.15.22 Панели перекрытия сплошные по серии 1.143-4.