ПК 63.18

Чертеж изделия:
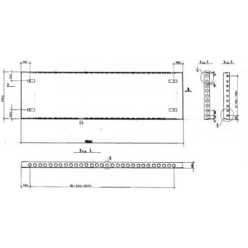
Характеристики изделия:
ПараметрЗначение
длина6280 мм
ширина1790 мм
высота220 мм
вес3475 кг
серия1.141.1 КЛ-3

ПК 63.18 Плита перекрытия с круглыми пустотами по серии 1.141.1 КЛ-3.