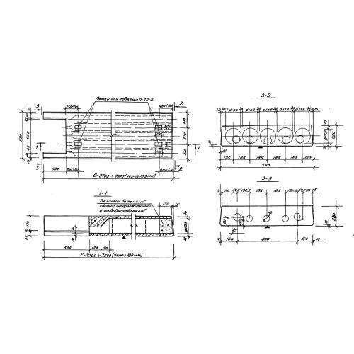
КНК 28.10

Чертеж изделия:
Характеристики изделия:
ПараметрЗначение
длина2800 мм
ширина990 мм
высота220 мм
вес825 кг
серия1.141.1  КР-3

КНК 28.10 Панели с круглыми пустотами с консольными выпускными ребрами по серии 1.141.1  КР-3.