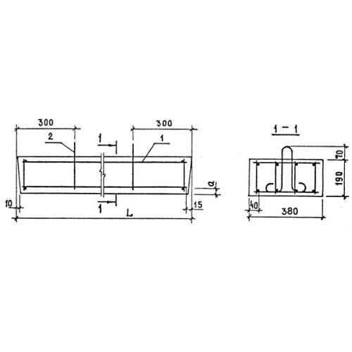
БП 31

Чертеж изделия:
Характеристики изделия:
ПараметрЗначение
длина3100 мм
ширина380 мм
высота190 мм
вес560 кг
серия1.139-1

БП 31 Плитные перемычки по серии 1.139-1.