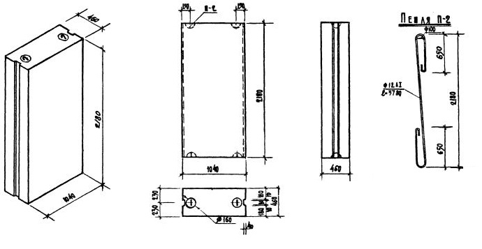
ВБ-10.22.5

Чертеж изделия:
Характеристики изделия:
ПараметрЗначение
Длина1040 мм
Ширина460 мм
Высота2180 мм
Масса1850 мм
Нормативный документСерия 1.134-1

ВБ-10.22.5   Блоки внутренних стен вертикальные по Серии 1.134-1.