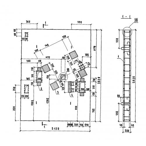
ПЛ 100-21 плита перекрытия шахты лифта

Чертеж изделия:
Характеристики изделия:
ПараметрЗначение
длина2120 мм
ширина2820 мм
высота200 мм
масса2900 кг
нормативный документСерия 1.089.1-1

ПЛ 100-21 Плиты перекрытия шахт лифтов  Серия 1.089.1-1.