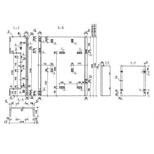
БШЛ 63-42 блок шахты лифта основной

Чертеж изделия:
Характеристики изделия:
ПараметрЗначение
длина2970 мм
ширина1100 мм
высота4180 мм
масса5880 кг
нормативный документСерия 1.089.1-1

БШЛ 63-42 Блоки шахт лифтов Серия 1.089.1-1.