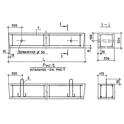
5ПБ 25 перемычки брусковые

Чертеж изделия:
Характеристики изделия:
ПараметрЗначение
длина2460 мм
ширина250 мм
высота220 мм
масса338 кг
нормативный документСерия 1.038.1-1

5ПБ 25  Перемычки брусковые Серия 1.038.1-1.