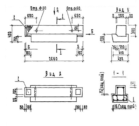
РОП 4.27 ригели

Чертеж изделия:
Характеристики изделия:
ПараметрЗначение
длина2660 мм
ширина432 мм
высота450 мм
масса940 кг
нормативный документСерия 1.020-1/83

РОП 4.27  Ригели однополочные для опирания многопустотных плит покрытия Серия 1.020-1/83.