К 14

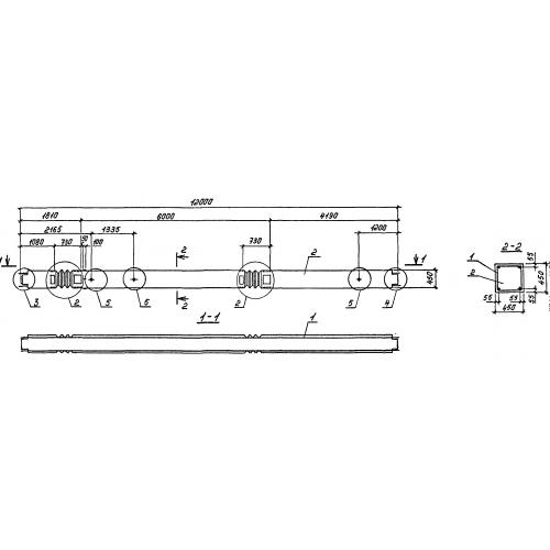
Чертеж изделия:
Характеристики изделия:
ПараметрЗначение
длина12000 мм
ширина450 мм
высота450 мм
масса5900 кг
нормативный документГОСТ 27108-86

К 14  Колонны ГОСТ 27108-86.